
location
Israel
Shimon Zarfati ltd.
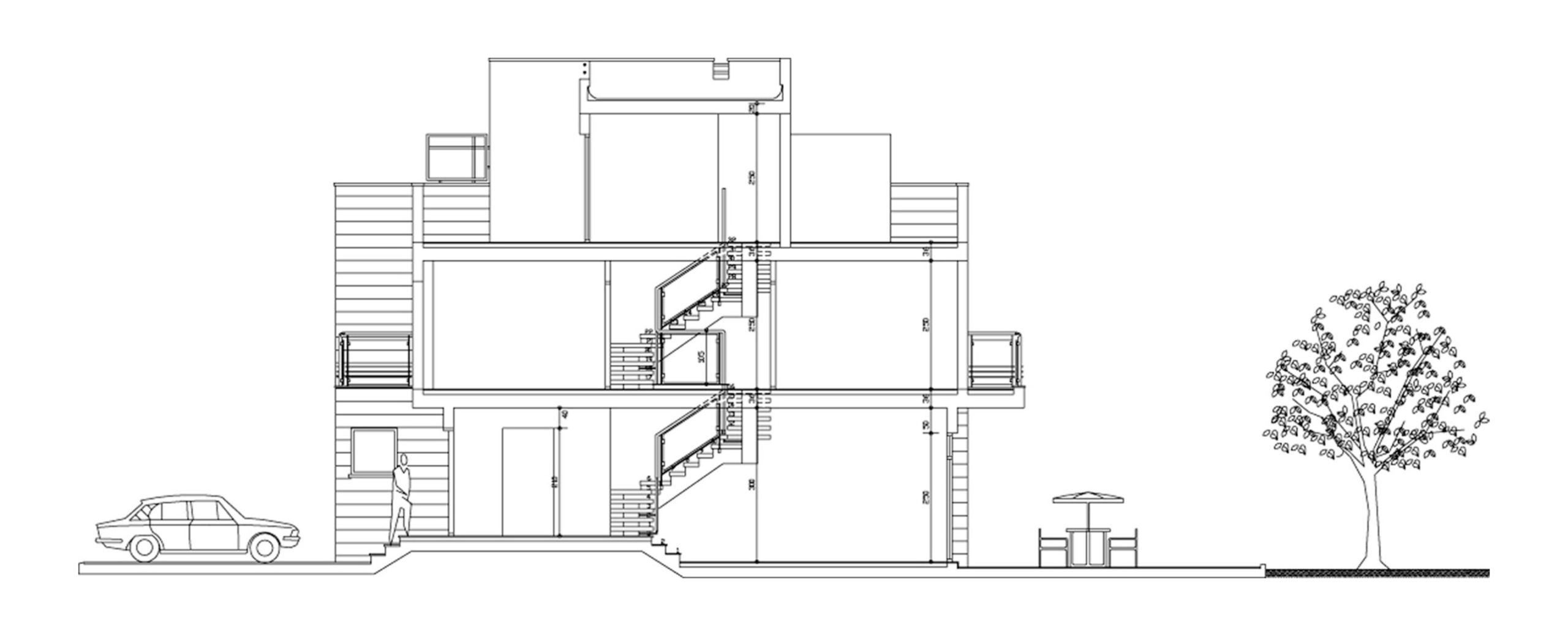
Row houses
20,000 sqm
Completed 1998
The “Bustan” neighborhood aims to create a Mediterranean village in the city port of Ashdod trying to introduce the concept of row houses allowing the development of a private community within a large city. The emphasis on public space, and community life inhabiting that space created a series of squares and paths, for the leisure of children, adults and elderly, enabling a heterogeneous composition of the neighborhood. The architecture of the houses exhibits various aspects of modern language, while creating a peaceful place for living, a refuge from the noisy street of this industrial city.